Quadrilocale in vendita

Vicenza, Via Boito
€ 155.000
4 locali 4 locali
115 Mq 115 Mq
2 bagni 2 bagni

Quadrilocale in vendita

Vicenza, Via Boito

Descrizione annuncio

TI INVITIAMO A CLICCARE SU VIRTUAL TOUR, COSI' POTRAI VISIONARE L'IMMOBILE IN 3D E OTTIMIZZARE IL TUO TEMPO. UNA VOLTA APERTO BASTERA' CLICCARE SUI CERCHI PER ESPLORARE LA CASA. INOLTRE E' POSSIBILE RILEVARE LE MISURE CHE TI OCCORRONO (PARETI, ARREDI, ALTEZZA SOFFITTO E SOPPALCHI ETC.), PUOI FARE TUTTO QUESTO DALLA TUA SMART

TRICAMERE - INTERNO SAN LAZZARO

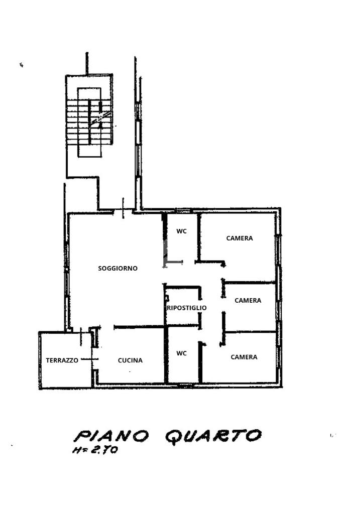
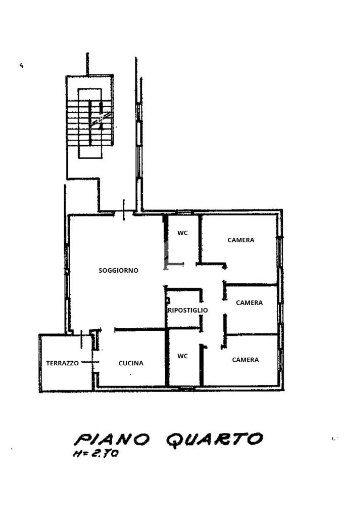
Spazioso e ben distribuito quadrilocale situato in zona interna di San Lazzaro, in posizione tranquilla ma comoda a tutti i principali servizi: farmacia, supermercati, scuole, fermate dell’autobus e molto altro, tutto raggiungibile a piedi. L'appartamento si trova al quarto piano di una palazzina ben tenuta, realizzata a fine anni ’80 e dotata di ascensore. L’edificio si presenta in buone condizioni.

DESCRIZIONE E PARTICOLARITA': L’appartamento si apre su un luminoso soggiorno, affiancato da una cucina separata e abitabile con accesso diretto a un grazioso terrazzo vivibile, ideale per pranzi e cene all’aperto con vista aperta. Un lungo corridoio conduce alla zona notte, composta da tre camere da letto: una matrimoniale, una doppia e una singola, perfetta anche come studio. Sono presenti due bagni finestrati: uno dotato di box doccia, l’altro di vasca da bagno. Completa la proprietà un comodo ripostiglio/lavanderia con attacco per lavatrice. Al piano interrato si trova un garage singolo di proprietà.

COSA SAPERE DELL'IMMOBILE: L’immobile si presenta in buone condizioni interne ed è venduto arredato. È dotato di infissi in legno con vetrocamera, che garantiscono un buon isolamento termico e acustico. L’abitazione dispone di impianto di riscaldamento autonomo e climatizzazione indipendente, per il massimo comfort in ogni stagione. Le spese condominiali sono contenute e ammontano a circa 1.200 euro all’anno.

COME CONTATTARCI: Per ulteriori informazioni chiama il numero 0444 563390 oppure via Whatsapp al numero 3276798238

Mostra tutto

Nelle vicinanze

Trasporto pubblico Trasporto pubblico
stazione di Vicenza
stazione di Vicenza
1,9 Km
Trasporto pubblico
100 m
Park Quasimodo
Park Quasimodo
420 m
Ricariche auto elettriche Ricariche auto elettriche
Auchan Vicenza Detas Circontrol
670 m
Parcheggio Stazione di Vicenza | EnelX
1,8 Km
Lampionet Verdi
1,8 Km
Park Fogazzaro
2,1 Km
Lampionet Matteotti
2,7 Km
Scuole Scuole
Scuole
140 m
Scuola secondaria di primo grado "G. Ambrosoli"
170 m
Scuola primaria "L. Zecchetto"
260 m
Istituto Tecnico Economico "A. Fusinieri"
930 m
Scuola Primaria A. Loschi
1,2 Km
Farmacia Farmacia
Farmacia
20 m
Parafarmacia
600 m
Farmacia Marson
1,0 Km
Farmacia Carlassare
1,6 Km
Farmacia del Sole
1,7 Km
Ospedali Ospedali
Guardia Medica - Servizio di continuità assistenziale
990 m
Ospedali
1,2 Km
Casa di Cura privata Eretenia
2,3 Km
Pre-Triage
2,6 Km
Ospedale Civile di Vicenza "San Bortolo"
2,7 Km
Supermercati Supermercati
Alì
80 m
Interspar
370 m
Biosapori
420 m
Prix
470 m
Emisfero Cattane
600 m
Negozi Negozi
Ciao Ciao
20 m
Panificio De Mas Micheluto
570 m
Centro della Pelle
760 m
Panificio Zuccon
1,0 Km
Negozi
1,5 Km
Bar Bar
La Canevassa
250 m
Idem Music Bar
430 m
Osteria alle Botti
450 m
Pasticceria Loris
460 m
Le Cha Noir
470 m
Ristoranti Ristoranti
Biosapori
400 m
Ristotantino Mabana
450 m
Ristorante La Cueva
460 m
Mar Picante
520 m
Osteria Piccolo Piemonte
550 m
Mostra tutto

Caratteristiche

Rif.:
61129643
Piano:
4 di 5 con ascensore (Piano alto)
Box:
1
Terrazzi:
1
Camere da letto:
3
Arredamento:
Completo
Mostra tutto
Prezzo Prezzo
€ 155.000
Rata mutuo Rata mutuo
€ 710 / mese
Spese annue Spese annue
€ 1.200
Proponi il tuo prezzoProponi il tuo prezzo

Classe Energetica

D
D
D
D
D
D
D
D
D
Anno di costruzione:
1986
Riscaldamento:
Autonomo
Tipo impianto:
A radiatori
Tipo alimentazione:
Metano

Ti interessa visionare l'immobile?

Fissa un appuntamento  Fissa un appuntamento

Richiedi informazioni

* Questi campi sono obbligatori

Calcola il tuo mutuo

Semplice e senza impegno
Anticipo

( % )
Mutuo

( % )

pochi semplici passi

inserisci i tuoi dati
Questionario completato
Grazie per aver richiesto un appuntamento senza impegno con un nostro Consulente del Credito e Assicurativo.

Hai inserito correttamente tutti i dati necessari e a breve riceverai una e-mail con un link da convalidare per inviare i tuoi dati.
Affiliato
Studio Santa Bertilla Srl
Via Legione Antonini, 90 36100 Vicenza (VI)

Il nostro staff


  • Giacomo Gava
    Affiliato
Via Legione Antonini, 90 36100 Vicenza (VI)
Zona: Santa Bertilla-Mercato Nuovo-Ferrovieri
Mostra su mappa
Affiliato
Studio Santa Bertilla Srl
Via Legione Antonini, 90 36100 Vicenza (VI)

2025 Tecnocasa Franchising S.p.A. - P. IVA 08365160152 - Via Monte Bianco 60/A 20089 Rozzano (MI). Ogni agenzia ha un proprio titolare ed è autonoma. Privacy policy | Policy utilizzo | Cookie policy